ESCOLA MUNICIPAL SP
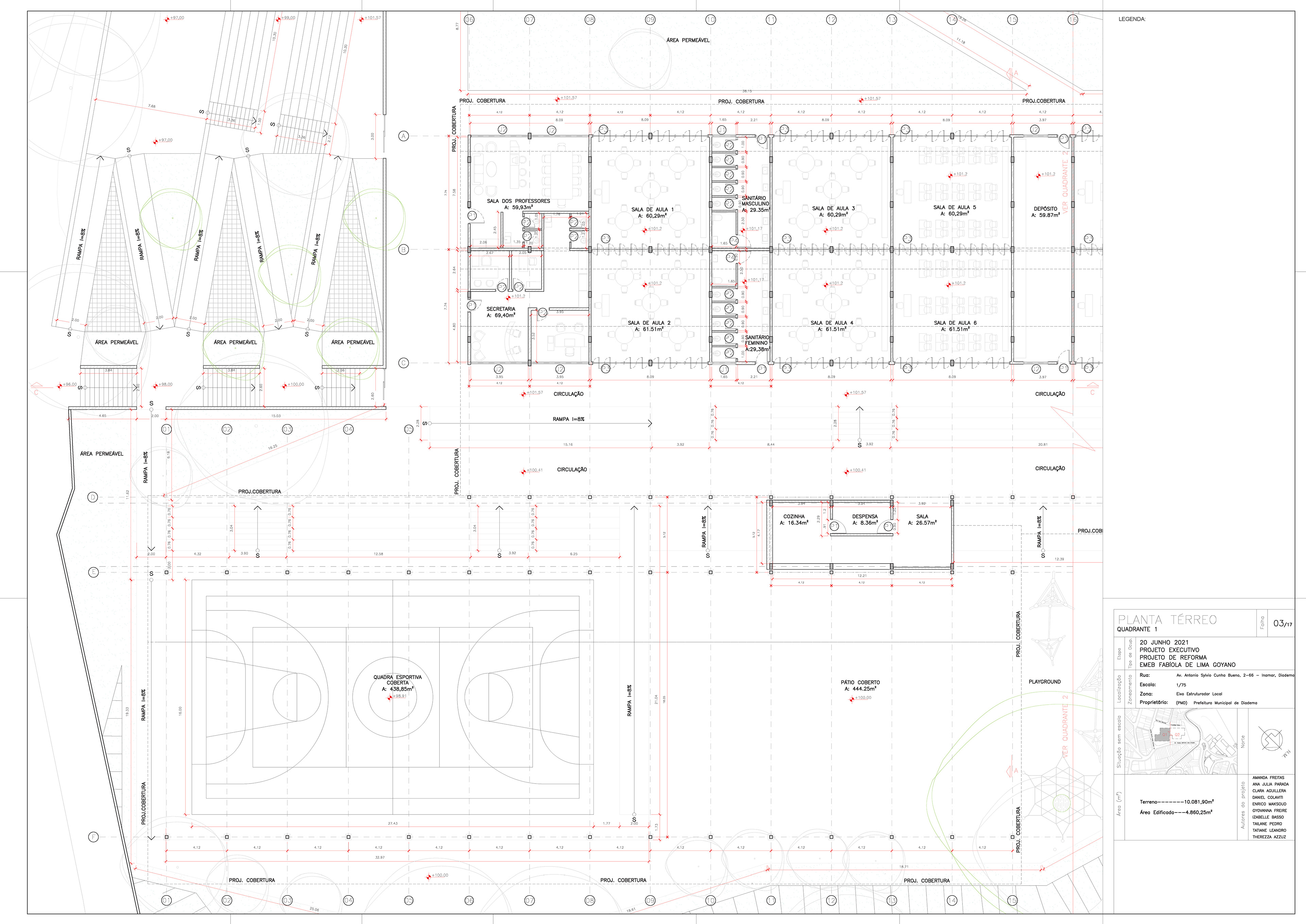
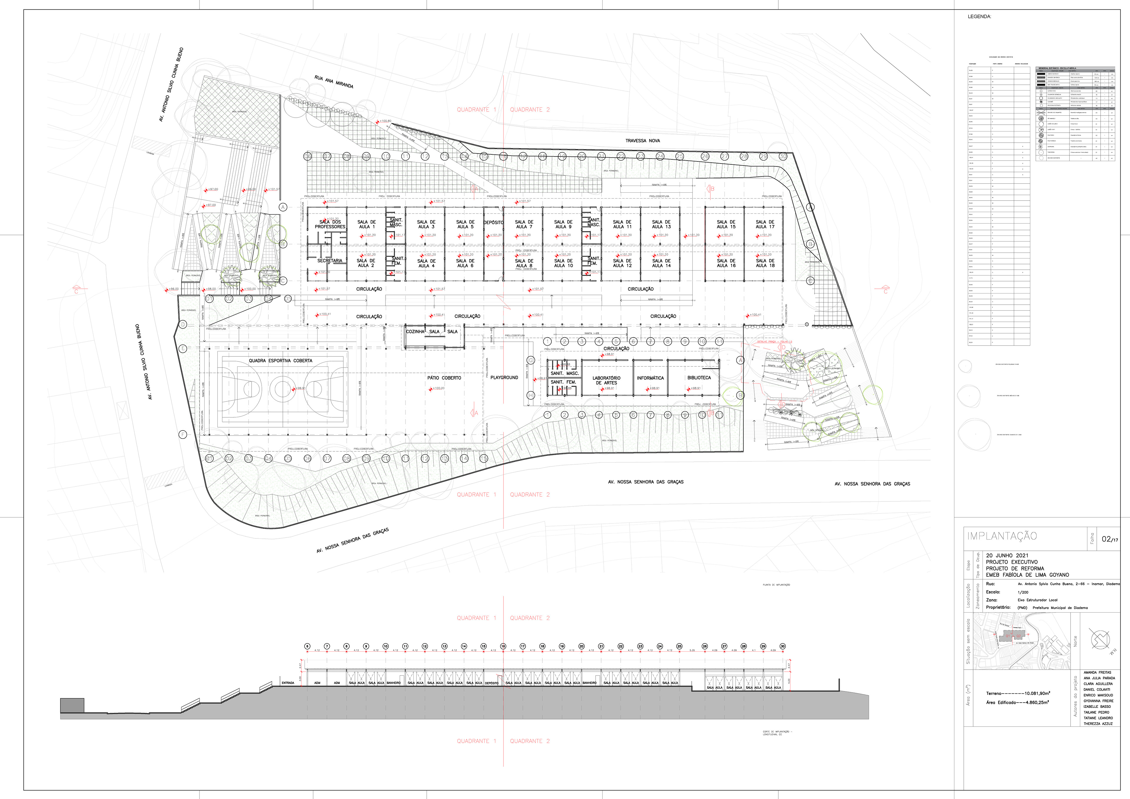
Projeto de reforma para a E.M.E.B. Profª Fabíola de Lima Goyano, localizada em Diadema, São Paulo. O mesmo visa flexibilizar algumas normas da FDE e proporcionar ensino humanizado e de qualidade espacial aos alunos.
Projeto de reforma para a E.M.E.B. Profª Fabíola de Lima Goyano, localizada em Diadema, São Paulo. O mesmo visa flexibilizar algumas normas da FDE e proporcionar ensino humanizado e de qualidade espacial aos alunos.